
国家三级甲等医院
成都中医药大学附属医院
健康热线:
广中医采(2021)第 33号
各潜在供应商:
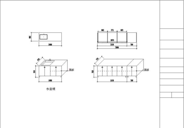
我院进一步加强发热门诊改造建设,急需定制采购一批核酸检测操作台(具体需求详见图纸)。请有相关信息和具有合法合格资质的供应商将产品和公司相关资料(公司资质、生产厂家资质、品牌、规格、型号、产品质量承诺书及报价单等)密封后于封面上填写报价单位名称、报价名称、联系人及电话并加盖公章于2021年11月5日上午12点前送至或邮寄至广元市中医医院采购办。如未按要求的视为无效文件。
备注:1、需不锈钢水槽5套(不锈钢单槽、冷热水龙头、高压管、三角阀)
2、此项目报价需包含运输费,人工安装费等所有费用。
地址:四川省广元市利州区建设路133号
名称:广元市中医医院采购中心(北院区)
联系人:何老师
电话:0839-3225211
广元市中医医院
2021年11月1日






Copyright©2026 www.gyszyy.cn All Rights Reserved 主办单位:广元市中医医院 网站访问总量:18825918 人次
医院地址:广元市利州区建设路133号 联系电话:院办公室:3222508 门诊办电话:3245973 急诊科:3225319 急救电话:3234567