
国家三级甲等医院
成都中医药大学附属医院
健康热线:
各供应商:
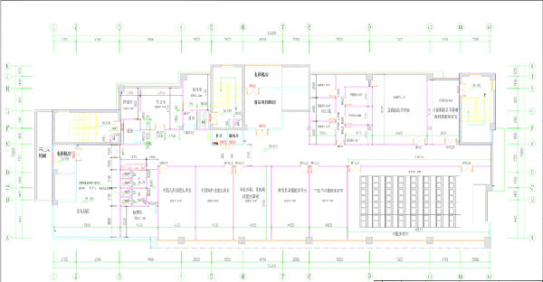
现我院面向社会公开对第一住院部16楼规范化培训临床技能实训室建设项目进行征集实施方案,请有相关资质及从业经验的供应商,在规定的时间内派专业的人员进行现场查看,并完成实施方案文本及价格等相关资料递交。
参加方案征集的公司需将实施方案文本,报价等相关资料进行密封,密封后于封面上填写公司名称、联系人及电话,并加盖公章于2023年3月7日12时前送至或邮寄至广元市中医医院采购办。如未按要求的视为无效文件。
联系方式及地址:
地址:广元市利州区建设路133号(北院区行政楼6楼)
名称:广元市中医医院采购办
资料递交联系电话:0839-3225211
资料递交联系人:夏老师
现场查看联系电话:0839-3954735
现场查看联系人:彭老师
监督电话:0839-3226676  王老师
 
 
广元市中医医院
2023年2月24日
 
Copyright©2026 www.gyszyy.cn All Rights Reserved 主办单位:广元市中医医院 网站访问总量:18818741 人次
医院地址:广元市利州区建设路133号 联系电话:院办公室:3222508 门诊办电话:3245973 急诊科:3225319 急救电话:3234567